AVA Hirafu
Hirafu, Hokkaido, Japan, 2025—
Amidst the ongoing rush to own a part of the Niseko ski area, the AVA Hirafu project shows a rare opportunity: Few sites remain where the region’s two defining mountains, Yotei and Annupuri, can be experienced simultaneously as opposing presences.
At AVA, the mountains are not distant scenery; they register time, orientation, and movement. As the sun rises behind the silhouette of Yotei, the day begins with Annupuri emerging in light. In the evening, the reverse: Yotei catches the last rays of the day before the sun disappears behind Annupuri.
The masterplan we inherited, on the other hand, seems blatantly indifferent to this. It reflects a development mindset that prioritises uniform parceling over understanding the specific qualities of the place. Such a logic differs fundamentally from the operative intelligence found in some of Japan’s remote villages where simplicity and pragmatism have led to a high degree of sensitivity to contexts shaped by similarly extreme seasonal changes. Where the former tends toward fragmentation and thereby limits what the site has to offer to only a few, the latter understood density as a sophisticated instrument of collective resilience, used to negotiate proximity and the rigour of the seasons. AVA operates within this tension, transforming these inherited constraints into a source of architectural agency.
In working both with and against this masterplan, regulation becomes an instrument: a field of parameters whose edges are more informative than its centre. The architectural response is reduced to the essential. The surrounding nature remains a collective presence.
AVA is more than a neighbourhood of houses. Through continuous variation rather than expressive difference, a cohesive structure emerges, within which program differentiates into villas, apartments, spa, retail, and restaurant. Coherence is produced through constraint, forming an ensemble that does not seek picturesque harmony, but a calm intensity — a place where individuality exists within shared discipline.
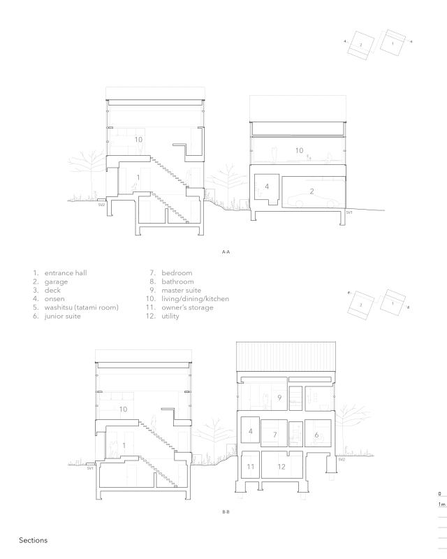
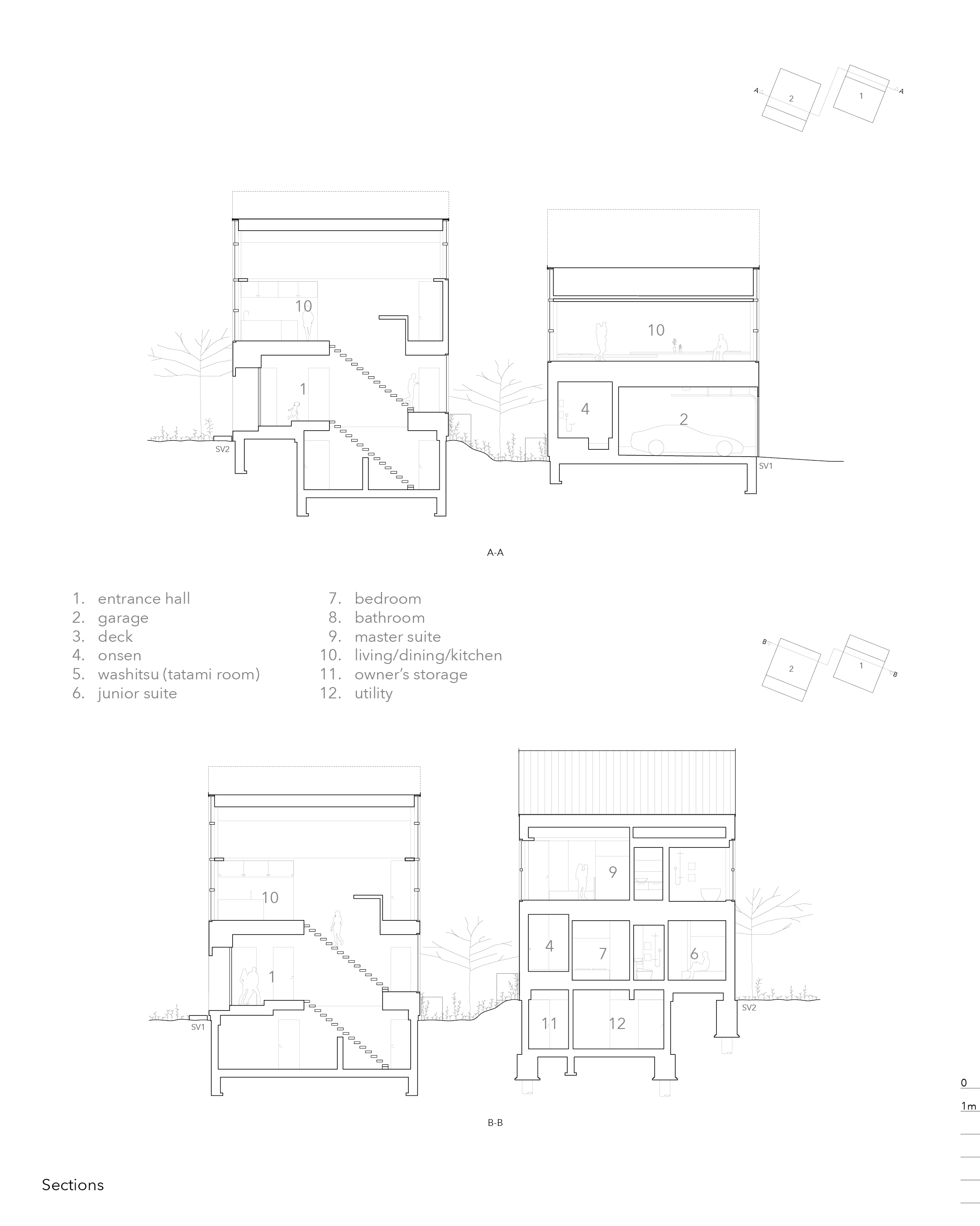
The volumes shift in order to ensure views of both mountains from every building. This organising principle is felt throughout each villa: Upon entering, the Annupuri–Yotei axis extends through the full depth of the building. Both mountains are connected as framed views on either end of the entrance hall. On the upper level, this is amplified: the living and dining area is one contiguous space where Yotei and Annupuri come together under one roof.
In moving beyond separate houses and harnessing the benefits of an interconnected network, AVA raises the bar for energy efficiency of ski resorts in the area and beyond.
Geothermal and solar systems operate collectively across the site. The varying roof geometries create local differences in energy yield that, as a whole, shows optimum output over the course of the day and the seasons. Sharing surplus and demand throughout the community, performance is relational rather than isolated.
A fine-tuned system of louvers on the eastern and western façades ensures that each building is optimised for insolation whilst capturing views.
Cross-Laminated Timber (CLT) construction allows variation within a coherent system. Structural and thermal performance are integrated, combining the advantages of conventional concrete and timber construction. Using local timber, all structural elements are processed in Hokkaido and assembled on site with minimal waste, significantly reducing embodied carbon.
As distribution into small volumes is mandated by local regulations causing the total exterior surface to increase, keeping all units compact becomes essential. Variation makes compactness (all volumes approach the energy-efficiency optimum area-to-volume ratio) possible without sacrificing openness.
Density becomes opportunity, constraint character. Ownership means becoming part of a place defined not by excess, but focus.
Hirafu, Hokkaido, Japan, 2025—
Type
Status
Team
Florian Busch, Sachiko Miyazaki, Joachim Nijs, Maki Kishii, Sakiko Tanaka, Sakura Kimura, Reo Shima, Owen Law, Jia Min Wong, Dyro Yamashita, Gabby Woo (Intern), May Sato-Bouziri (Intern), Johanna Dorn (Intern), Robin Legrand (Intern)
Structural Engineering: ARUP
Mechanical Engineering: ARUP
Environmental Engineering: ARUP
Lighting Design: ARUP
Graphic Design: gtdi
Contractor: Wakisaka Corporation
Client: Terraform Capital
Size
Site: 17,028 m²
GFA: 8,170 m² (Total development)
GFA: 200~500m² (per villa)
GFA: 1,130 m² (Apartments)
GFA: 1,540 m² (Restaurant, Retail, Spa)
Structure
(CLT)
Related Projects:
- AVA Hirafu, 2025
- Hirafu Creekside, 2021
- Kita Unga Hotels, 2019
- K House in Niseko, 2015—2017
- F&F Project, 2011
- House on the Slopes, 2011
- AVA Hirafu, 2025
- Warehouse 3, 2022
- Vertical Landscapes, 2015
- AVA Hirafu, 2025
- Nobori Building, 2021—2023
- Warehouse 3, 2022
- Y Project in Kagurazaka, 2017—2018
- K8, 2014—2015
- Zucca Restaurant, 2012
- RG Project, 2009
- AVA Hirafu, 2025
- Nobori Building, 2021—2023
- Warehouse 3, 2022
- CnP Project, 2018—2020
- Kita Unga Hotels, 2019
- I'T, 2019
- Y Project in Kagurazaka, 2017—2018
- Kiso Town Hall, 2017
- Vertical Landscapes, 2015
- Taichung City Cultural Center, 2013
- Tokyo Designers Week 2011, 2011
- Echigo Tsumari Australia House, 2011
- The Rings of Dubai, 2009
- RG Project, 2009
